名家对话|南京大屠杀纪念馆设计者齐康:建筑可以警醒
今天是日本战败投降72周年纪念日,提及齐康这个名字,也许对于普通读者而言些许有些陌生,但他设计的南京大屠杀遇难同胞纪念馆、雨花台公园中轴线等建筑却无人不晓。如今,1931年出生的齐康老先生依旧每周三天出现在南京东南大学的办公室,指导学生设计,并为“海昏侯遗址博物馆”的设计出谋划策。
澎湃新闻(www.thepaper.cn)与上海美术学院“上美讲堂”一行前不久来到东南大学齐康先生的办公室,就他的建筑和教学理念展开对话。与其称之为“对话”,这更像是一次孩子们对于长辈的探望。尽管未曾谋面,但这位新中国建筑界的“泰斗”级的人物,却早早等在办公室,时不时问身边的工作人员,“他们什么时候来?”当初见寒暄之时,齐老先生却说:“不要说我是‘泰斗’,我只是一位老师 。
然而,这位精神矍铄的老人必将和他的老师杨廷宝、刘敦桢等人一样,被写入中国建筑史,而他所设计的建筑也成为一个时代的象征。

齐康在东南大学办公室
关于建筑,做“地区的、现代的、新建筑”
澎湃新闻:过去您设计过很多公共纪念建筑,其中最被大众熟知的是南京大屠杀遇难同胞纪念馆,其中是否带有您的个人记忆?
齐康:我设计过三个纪念地,第一个是侵华日军南京大屠杀遇难同胞纪念馆,第一期和第二期是我做的,现在已经列为文物保护;第二个是南京雨花台革命烈士纪念馆;第三个是中国共产党代表团梅园新村纪念馆,里面有周恩来、邓颖超和吴玉章的雕像,这是周恩来与国民党谈判的纪念馆,这三个纪念地分别建在不同的地点,也有不同的意义,我特别强调意义,而针对不同的意义我也会用不同的手法来表现。
当初日本人进城时,我的父亲是南京收容所的所长,当时一共收容了3万人并保护他们。有一次,当他傍晚出门救难民的时候,正巧碰到了两个日本鬼子,他们把枪架在我父亲的身上,尽管他的身上有红十字,但日本人并不相信,这时恰巧走来一个叫Ricks的美国人,他就大喊了一声:“Ricks!”于是Ricks就把我爸爸和他的助手救了。这件事给我留下了很深的印象,南京大屠杀的确让无数无辜的人民遇难。不同的纪念地在不同的地点会拥有不同的意义,而在不同的时代也应该做出不同的作品。

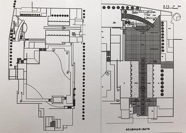
南京大屠杀纪念馆平面图
我在东莞还建造了一个东江纵队纪念馆,东江纵队的领导人是曾山,在华南打游击的时候与北方脱离了。后来当地叫电竞竞猜去设计时,设计在一座小山,山下仍然可见打仗时枪弹留下的印记。
澎湃新闻:对于南京大屠杀遇难同胞纪念馆,您是怎么通过建筑来表达它的意义的呢?如何以建筑讲述南京大屠杀的悲怆,又是如何给后人以不忘的警醒的?
齐康:南京大屠杀共杀害了30万人,因此当时南京市委书记很支持我用红色在地上写上“30万”,墙上有邓小平同志写的“侵华日军南京大屠杀遇难同胞纪念馆”,其文字也分别用中、英、日三种语言来书写。从坡上走下来,可以看见南京大屠杀的群雕。
南京大屠杀纪念馆第一期是电竞竞猜的一个重要设计,第二期的设计原本以招标进行,当时我是全国政协委员,呼吁扩大用地 。宣传部门要国际招标,英国公司的方案最好,许多专家说不能让外国人来设计,于是就由了华南理工大学来做,但是做得不是很理想。最后还是我来设计了,我的设计用来表达了人民的生与死,所以其中全部运用了鹅卵石,但是鹅卵石不能太细,不然就像日本园林的枯山水了,所以后来我都用的是粗一点的鹅卵石。

南京大屠杀纪念馆内的一片鹅卵石
南京大屠杀真的很惨烈,日本人闯来屠杀、强奸、掠夺,很多(日本右翼)反动分子甚至到今天还不承认,但南京大屠杀的问题在东京审判的时候已经被认定了,所以这是铁板钉钉的事实。
南京的雨花台革命烈士纪念馆的轴线也是杨廷宝老师和我设计的,这条轴线自南向北有1000米长,现在更长了。当时很多专家认为纪念碑不能高于14米,但后来我觉得这个纪念碑既然要统领整个轴线就必须要高,所以我就用了42.3米(即南京城获得解放的日子),其实我又偷偷地将它拔高。

南京雨花台革命历史纪念馆、碑(中轴线)鸟瞰图

南京雨花台革命历史纪念馆、碑设计平面图
我觉得北京的人民英雄纪念碑37.2米,如果将它拔高会更好,因为天安门广场很大,人民大会堂和法国人安德鲁设计的国家大剧院都是40多米高。讲到国家大剧院,很多人管它叫“皮蛋”,其实这个的设计方案从一开始就争议很大,但我当时还是支持的。但当时甚至有人觉得建造了如此形式的大剧院,建筑史就要被倒过来写了。另外,被称为“大裤衩”的中央电视台总部大楼也惹了很多非议,这个方案是被选出的。
澎湃新闻:现在中国出现了层出不穷的新建筑,甚至被称为外国建筑师的试验场,您怎么看?
齐康:我认为有些建筑师还是可以的,在上海外滩和陆家嘴的建筑都是“八国联军”式,即任何国家的风格都能被看见,被称为海派文化。而南京相对传统,保留了国民党时期多的痕迹,民国风格明显,比如过去我设计的“南京1912”和“1865”就保留了一些地方风格。

东南大学大礼堂,齐康钢笔速写
澎湃新闻:您觉得一个城市应该沿着它的历史轨迹来发展建筑吗,比如上海拆除了一些石库门,而新的建筑又呈现非本地性的元素,这是对城市记忆的破坏吗?
齐康:上海大剧院是法国人建造的,金茂大厦其实有一点中国味道,这些我都参加过评选。我觉得90年代末外国人确实带来了许多先进的技术,但也搬来的一些外来的形式,的确有点把中国当作试验田的意味。电竞竞猜东南大学现在为北京设计了一个中国国学馆,已经建成了,室内装修也差不多了,值得一看,很有中国特色和中国味。
关于教育:建筑师要实践,不能局限在本本上
澎湃新闻: 中国“建筑四杰”中除梁思成外,杨廷宝、刘敦桢、童寯都做过您的老师,他们对你个人和中国建筑史的影响是怎样的?
齐康:我的老师很优秀,他们做的是民国式的建筑,较传统,比如杨老设计的体育馆、中央医院、现代的中国科学院,但是他们随着时代也做了一些新的建筑,比如孙科和宋子文的住宅等等。杨老在北京做的和平宾馆得到了周总理的肯定,但是现在又淹没在新建筑之中了,所以中国的建筑有点混乱。我对于自己的约150多个作品都主张“地区性的现代建筑”,即既代表中国,也反映现代。

福建武夷山庄(齐康参与设计作品),齐康钢笔速写
澎湃新闻: 您觉得您的这三位先生对中国建筑史有怎样的作用和影响?
齐康:过去,梁思成、刘敦桢分别担任营造学社的法式、文献组的主任,还有“北方有梁思成,南方有刘敦桢”的说法。到电竞竞猜这一代,时代造就了电竞竞猜。电竞竞猜在老师那里习得了扎实的基本功,想要感觉能比较快地表达出来,所以徒手画很重要。现在虽然有电脑,可以立体化,有尺寸、尺度,但是反应再快也没有脑子快,所以我觉得徒手画与电脑都应该重视。
杨老是跟着感觉走,所以建筑师的感觉很重要,即“悟”。我受到西方古典建筑的影响,也受到中国古典建筑的影响,也受到现代建筑的影响,所以我觉得不同的地点应该有不同的设计。

维也纳圣查尔斯教堂,齐康钢笔速写
澎湃新闻:您在东南大学教了很多年建筑,在您的执教生涯中,是如何继承传统并开拓创新的?
齐康:我1952年就留在东南大学了,我做了17年的政治工作,并帮杨老教一年级,帮童老教二年级,然后杨老成立了建筑研究所,我就跟着他一起去了,杨老是正所长,童老和我是副所长。1982年,杨老仙逝后,我就担任了正所长,一直到现在。1993年,我被评为科学院的院士。
我传承老师的方法就是实践,不能局限在纸张设计上。杨老设计的大小建筑也有100多个,我也有150多个都是与合作者共同设计,但我的建筑肯定要大得多,毕竟历史给了我很好的机遇。开拓创新就是之前提及的地区性的现代建筑,我在全国各地的作品很多,电竞竞猜也算是幸运者,能在全国各地做工程,做“地区的、现代的、新建筑”,我的头上扣上过很多帽子,有人说我是地方主义,我觉得不管是什么帽子,我还是坚持自己的做法。

河南博物院(齐康参与设计作品),齐康钢笔速写
澎湃新闻:现在很多学校都有建筑系,比如中国美院的建筑系相对提倡创新,而东南大学、同济大学和清华大学的建筑系相对来说偏传统,那么您觉得在如今的建筑教育中,应该更鼓励创新还是注重对规范的理解?
齐康:其实中国美院的王澍也是我的学生。目前全国最老的建筑系是东南大学建筑系,清华大学的老原系主任他是杨老的学生,学习苏联也走了电竞竞猜的这条老路,他们学习的是古典派,所以清华大学也没有太大的革新。
澎湃新闻:东南大学建筑系最近参与了“海昏侯遗址博物馆”的设计,能谈谈这个项目吗?
齐康:海昏侯国遗址博物馆一开始是电竞竞猜和其他单位竞标,最后南昌的市委都认为电竞竞猜做得好一些,电竞竞猜现在还在进行之中,建筑方向还是比较现代的,电竞竞猜很照顾地形,因为墓没有被破坏,里面有很多古东西。其实很难做,虽然新,但也要现实。在建筑设计上,没有比尺度错误更大的事了,一定要做得准,适用于环境和人的尺度 。

齐康先生信手所绘海昏侯国遗址博物馆现阶段设计草图
澎湃新闻:您对学建筑的年轻人有什么建议?
齐康:现在的学生应该明白,建筑的功能是首要的,表现是必备的,所以建筑师必须要有表现的手段,虽然电脑可以帮你画透视图或求公式,但是自己要能在设计中表现出自己的思想,手绘功夫还是很重要的,感悟也很重要。要刻苦学习,也要自我启迪。扩大知识面是当今重要的一点。
不同的建筑性格、不同的地点、不同的时代要反映不同的作风,所以建筑师知识面要宽,对历史要有概念。上个世纪我向地理学家了解地理,后来费孝通社会学家作报告也请我去。建筑学研究核桃壳,社会学和经济学研究核桃肉,核桃壳和核桃肉要同步增长。知识就是力量要不断更新。最后,希望美术学院培养众多的优秀美术家。
(本文采访录音由实习生贺含莼整理,本次对话鸣谢上海美术学院“上美讲堂”)


